Преимущества
- Септик изготовлен из антикоррозионных материалов;
- Очистка осуществляется по всем стандартам гигиены;
- ОНИКС 5 прост в установке;
- Выгодная стоимость и высокое качество;
- Степень очистки составляет до 98%;
- Полное отсутствие неприятных запахов;
- Возможность переработки чистящих составов;
- Возможность работы без подачи электроэнергии за счет самотечности;
- Компактные габариты;
- Долгий срок эксплуатации (более 50 лет).
Принцип работы
Хозяйственно-бытовые стоки из дома попадают в отстойник-разделитель септика ОНИКС 5, состоящий из трех отсеков, объемами 2:1:1. Такое разделение обеспечивает повышенную эффективность работы. На данном этапе происходит первичное очищение – оседают частицы крупных фракций. Вода в отстойнике перетекает с минимальной скоростью.
Из первого отсека через сифон стоки попадают во второй, при этом переливание происходит без перемешивания и пульсаций. Из второго отсека в третий через отверстие попадает уже очищенная вода. Взвесь и ил остаются в первых двух отсеках.
Чтобы добиться максимального качества очистки, предусмотрен второй этап – биологическая очистка. Септик ОНИКС 5 оснащен биозагрузкой, состоящей из новейшего загрузочного пластикового материала. Он представляет собой сетчатый блок, на которой закрепляется пленка с бактериями. Кроме того, он не пропускает и задерживает нерастворимые в воде материалы, волосы, пакеты и тд.
Для работы биозагрузки требуется обогащённая кислородом среда. Для этой задачи предусмотрен насос, который также отвечает и за подъем стоков для разбрызгивания. Для экономии и рационализации использования электроэнергии насос функционирует по времени. Вода поднимается по оросительной системе и равномерно распределяется по всей поверхности верхней части станции. В результате задействуется все пространство, а сама вода насыщается кислородом. Такое воздействие позволяет перевести все растворенные частицы в твердое состояние за счет минерализации.
Станция ОНИКС 5 адаптирована к использованию в российских условиях, поэтому, в случае возникновения перебоев с электричеством, продолжает работать в привычном режиме.
Монтаж
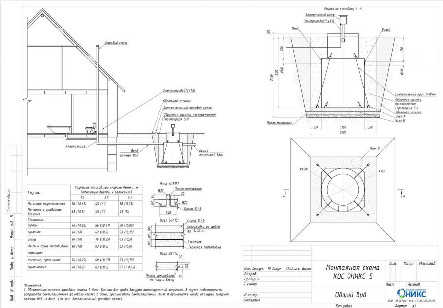
Септик ОНИКС 5 устанавливается в предварительно вырытый котлован. Его глубина рассчитывает так, чтобы после установки станции, горловина выглядывала на 15 см от поверхности земли. Это позволит предупредить попадание осадков внутрь камеры. Если монтаж производится в сыпучие грунты, необходима установка деревянной опалубки. Дно котлована рекомендуется засыпать мелким песком.
Бетонирование при монтаже септика не применяется, так как конструкцией предусмотрены специальные грунтовые зацепы, которые гарантируют надежное крепление. Исключением являются места с высоким уровнем грунтовых вод. В таком случае корпус станции бетонируется. Поскольку вес конструкции небольшой, для его погрузки в котлован не применяется спецтехника.
Когда септик опущен в котлован, одновременно производится его заливка чистой водой и обсыпка стенок снаружи песком. На завершающем этапе подключается канализационная труба и электропитание. На первых порах станция может работать не на всю мощь, пока не накопится активный ил в отсеках. Септик ОНИКС 5 неприхотлив в уходе. Необходимо раз в год откачивать нерастворимые жиры дренажным насосом или ассенизаторской машиной из трех отсеков. Затем камеры заливаются чистой водой. Если станция будет использоваться в зимнее время, проводить специальные мероприятия не нужно. Если зимой септик эксплуатироваться не будет, следует на 15 см откачать жидкость из камер. Крышку нужно хорошо закрыть и утеплить, а электропитание отключить.
Способы водоотведения
Схема установки септика ОНИКС 5 с отводом очищенной воды в ливневую канаву (принудительным или самотечным способом).
Схема установки с отводом воды в фильтрующий колодец (подходит для хорошо поглощающих грунтов (песок, супесь) и низкого уровня грунтовых вод.
Схема установки с отводом очищенной воды в фильтрующий колодец (подходит для хорошо поглощающих грунтов (песок, супесь) и низких грунтовых вод.

